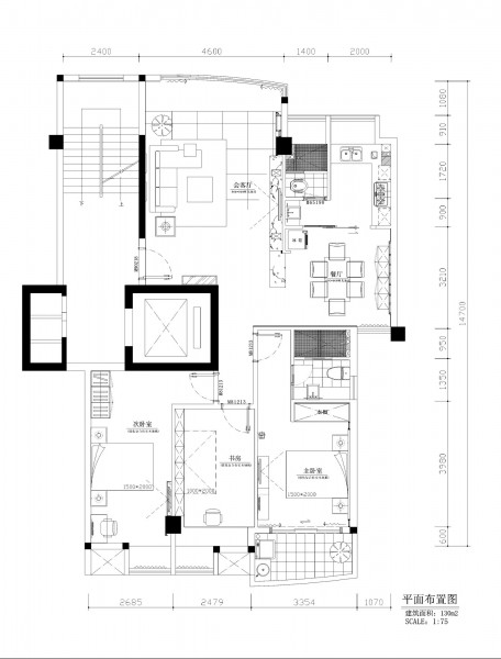
标签: 红境组东方玫瑰花园 汕头 室内设计 样板房
哇图网>室内设计图片>汕头红境组东方玫瑰花园-1503样品房实景图片_19张
-
汕头红境组东方玫瑰花园-1503样品房实景图片_19张(13)

标签: 红境组东方玫瑰花园 汕头 室内设计 样板房 日期:2018-11-23 浏览: 次
-
最近更新
- Powered resources from the Internet, especially if it involves copyright issues, please contact us, it will be corrected immediately indicate the source!
本站资源均收集整理于互联网,其著作权归原作者所有,如果有侵犯您权利的资源,请来信告知,我们将及时撤销相应资源。
Copyright © 2003-2018 哇图网 版权所有 All Rights Reserved
哇图网